Arasu – Terrain à bâtir d’environ 1 658 m² avec permis de construire , plage à pied
RV842 – E5 – Arasu
Situé dans la baie de Saint-Cyprien, au bord de l’eau, ce terrain à bâtir d’environ 1 658 m² bénéficie d’un permis de construire pour une villa de 190 m² avec terrasses et piscine de 42 m².
Le projet prévoit un cadre de vie exceptionnel, dans un environnement préservé, à seulement 900 mètres de la plage accessible à pied.
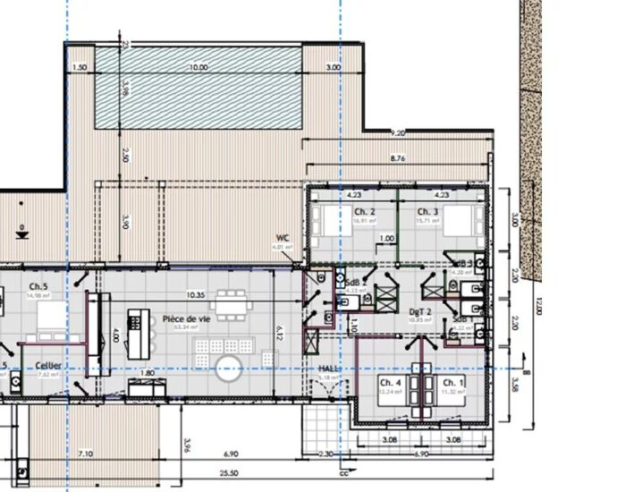
Le permis autorise la construction d’une maison pensée pour offrir confort et modernité : au rez-de-chaussée, une vaste pièce de vie avec cuisine s’ouvre sur deux terrasses, complétée par un hall d’entrée, un cellier, des toilettes indépendants, trois chambres, une salle de bains avec WC, une salle d’eau et un garage. À l’étage, une chambre avec salle de bains bénéficie d’un accès direct à une terrasse privative.
Ce terrain fait partie d’un programme immobilier de 15 lots viabilisés, raccordés au tout-à-l’égout, qui privilégie l’authenticité et l’harmonie avec la nature. L’environnement, à la fois résidentiel et familial, est idéal pour une résidence principale ou secondaire.
Facile d’accès, le lotissement se situe à proximité de l’aéroport de Figari et du port de Porto-Vecchio. Le coût estimatif de la construction est d’environ 840 000 €.
Honoraires à la charge du vendeur.
-
Plage à pied
-
Proche plage
-
Domaine privé
-
Superficie1 659 m²
Proximités
-
Aéroport45 km
-
Centre ville15 km
-
Commerces7 km
-
Mer1 km
-
Plage1 km
-
Port17 km
-
Cinéma7 km
-
Crèche7 km
-
Hôpital/clinique15 km
-
Médecin7 km
-
Supermarché7 km
-
Tennis7 km
-
Golf
Ce bien vous intéresse ?
Cette propriété est présentée par:

